• Type de bien
  • Maison unifamiliale
  • 1
  • Chambre
  • 1
  • Salle de bain
  • 126 m2
  • Superficie

Maison à reconstruire avec autorisation de bâtir à Echternach

  • 325.000€

Description

Opportunité rare pour investisseurs, artisans ou particuliers souhaitant créer leur propre habitation.

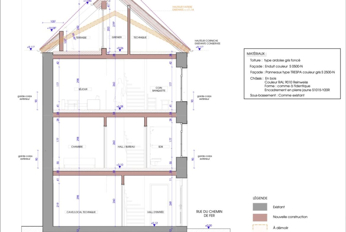
À vendre : une maison de ville à rénover entièrement, idéalement située au cœur d’Echternach, avec autorisation de bâtir pour la transformation complète du bâtiment existant en une maison unifamiliale moderne de trois niveaux avec terrasse sur le toit.

Le bâtiment actuel est inhabitable – le projet approuvé prévoit une reconstruction intégrale, selon les plans d’un bureau d’architecture.

Détails du projet

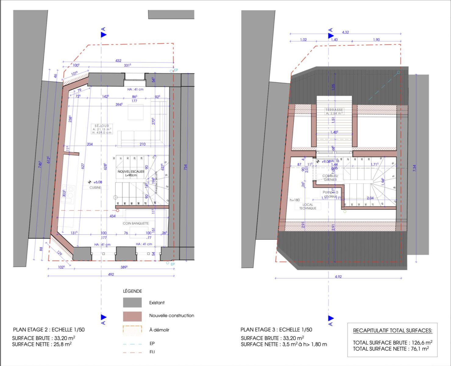
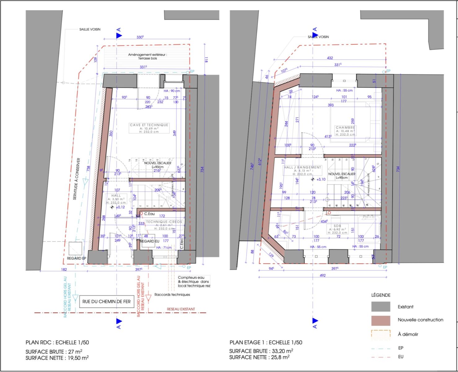
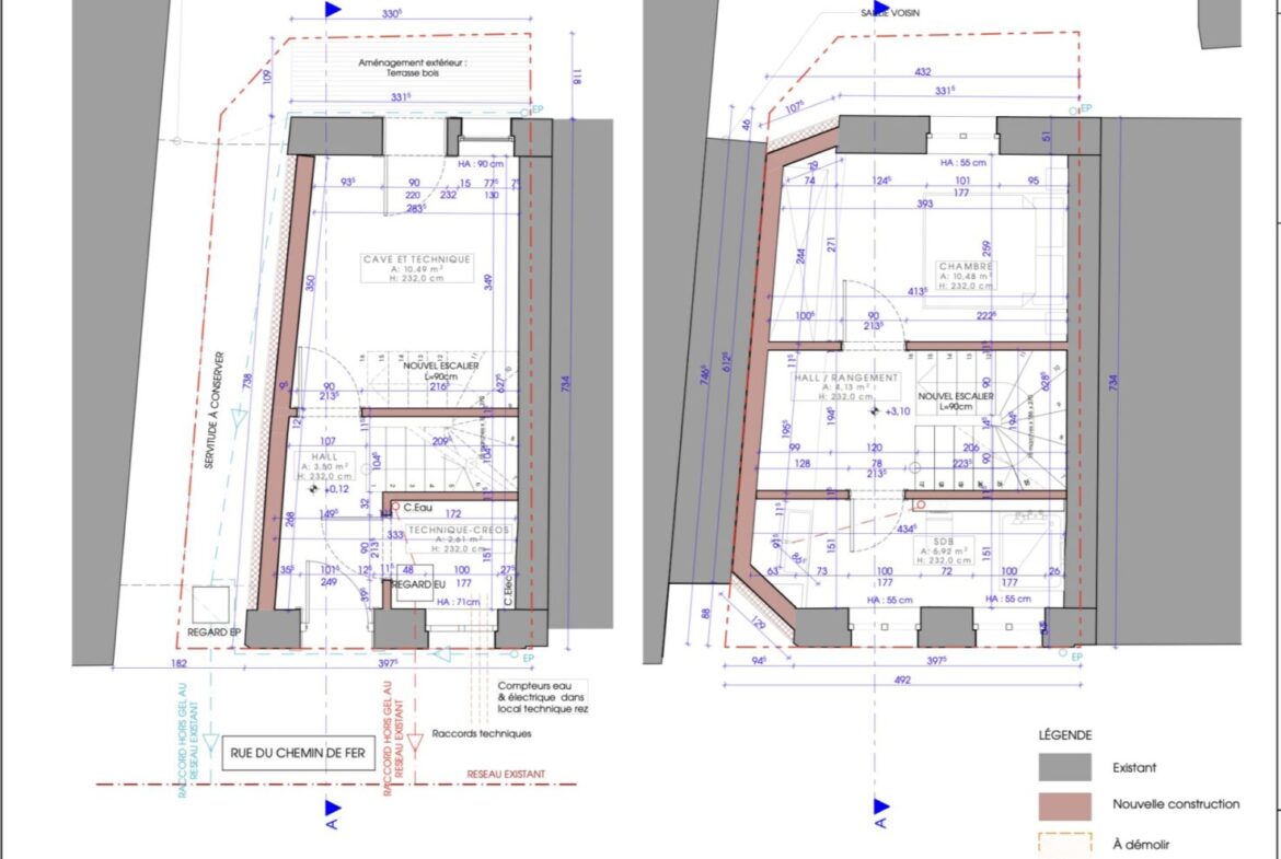
Rez-de-chaussée : hall, local technique et cave.

👉 Possibilité d’aménager le rez-de-chaussée en bureau indépendant, grâce aux deux entrées séparées du bâtiment.

1er étage : chambre, hall avec rangement, salle de douche.

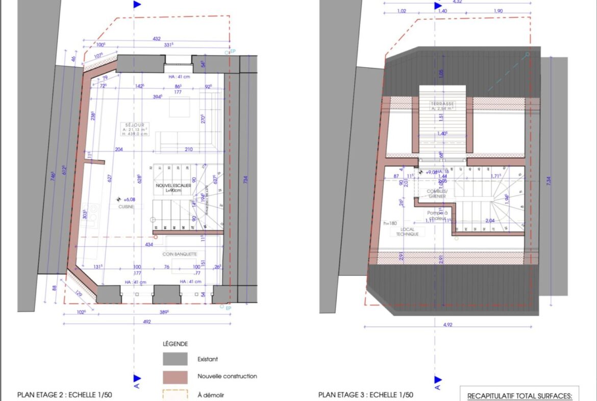
2e étage : séjour lumineux avec coin cuisine et espace bureau.

Combles : local technique et accès à la terrasse sur le toit.

 

Vue directe sur le jardin historique de l’Abbaye Saint-Willibrord – un panorama unique au cœur d’Echternach

Permis de construire accordé – démarrage immédiat possible

Atouts

✅ Projet d’architecte approuvé

✅ Emplacement central et calme

✅ Idéal pour investissement ou projet personnel

✅ Quartier à fort potentiel patrimonial et touristique

 

🌿 Echternach – Histoire, culture et qualité de vie

Echternach est la plus ancienne ville du Luxembourg et le centre culturel de la région du Müllerthal, surnommée la Petite Suisse luxembourgeoise.

Elle est mondialement connue pour sa procession dansante, inscrite au Patrimoine culturel immatériel de l’UNESCO, ainsi que pour son Abbaye bénédictine, sa basilique et sa villa romaine au bord du lac.

La ville offre un cadre de vie exceptionnel, entre patrimoine, nature et culture : sentiers de randonnée, zone de loisirs au lac, parc de la ville et le centre culturel Trifolion, qui accueille concerts et festivals tout au long de l’année.

Adresse : 25, Rue du Chemin de Fer, L-6439 Echternach

  • Adresse: 25, Rue du Chemin de Fer
  • Ville: Echternach
  • Code postal: L-6439 Echternach
  • Pays: Luxembourg

Détails

Updated on October 25, 2025 at 10:17 am
  • Prix 325.000€
  • Surface habitable 126 m2
  • Chambre 1
  • Pièces 2
  • Salle de bain 1
  • Type de bien Maison unifamiliale
  • Statut du bien A VENDRE

Compare listings

Compare